Betreuung im Hallenbad
Projekt
Provisorischer Umbau ehemaliges Hallenbad in Kinderbetreuungsstätte
Luzern, LU
Auftraggeber
Stadt Luzern
Realisierung
geb. 1960er, Umbau 2023 – laufend
Vorprojekt, Bauprojekt, Ausführungs- und Kostenplanung, Bauleitung
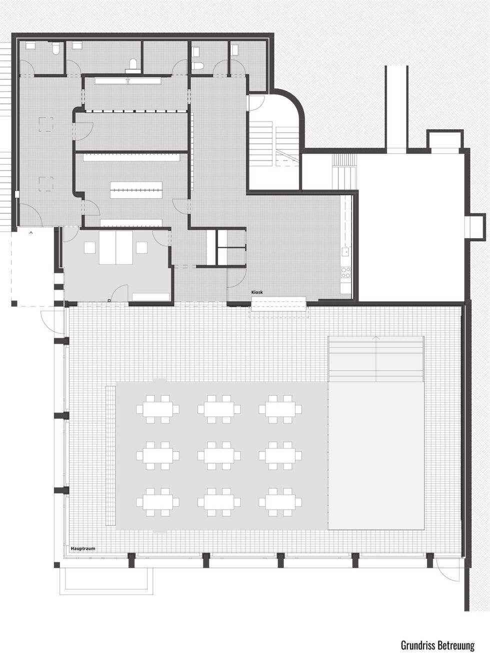
Im Auftrag der Volksschule der Stadt Luzern wurde das stillgelegte Hallenbad der Kinder- und Jugendsiedlung Utenberg in ein vorläufiges Provisorium für die Betreuung der Primarschule des benachbarten Schulhauses Utenberg umgebaut.
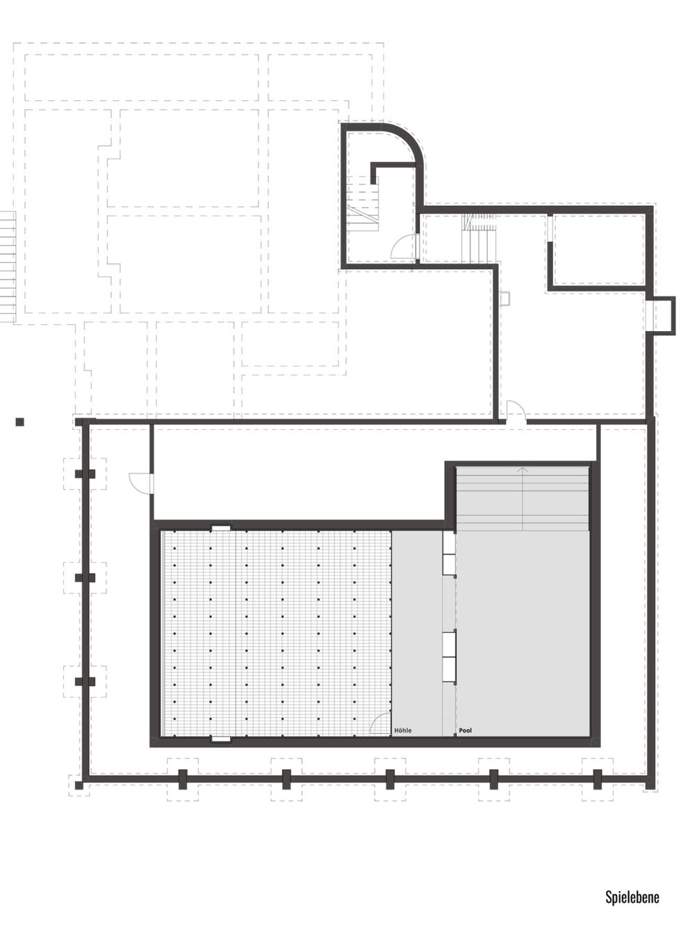
Die Betreuung besteht aus einem Hauptraum für Aufenthalt und Verpflegung sowie den zugehörigen Nebenräumen wie Garderobe, Büro, Materialraum, Küche und sanitären Anlagen. Um ausreichend zusammenhängende Fläche für den Mittagstisch bereitstellen zu können, wurden rund zwei Drittel des Beckenbereichs mit einer Holzkonstruktion gedeckt. Das verbleibende Drittel dient als Lese-, Spiel- und Rückzugsbereich.
Die Umsetzung des Provisoriums erfolgte mit möglichst geringen Eingriffen in die vorhandene Gebäudesubstanz unter weitgehendem Erhalt des vorhandenen Raumcharakters und dessen Gesamtwirkung als ehemaliges Schwimmbad. Ein unfertiger, werkstattartiger Charakter war dabei erwünscht.
Die haustechnische Infrastruktur wurde nach Möglichkeit erhalten und ergänzt. Fehlende oder mangelhafte Installationen wurden neu erstellt oder ersetzt und in das vorhandene System des Gebäudes integriert.
Beim Umbau wurde Wert auf Re-use gelegt. Wo möglich wurde in Zusammenarbeit mit der Stadt das Inventar aus anderen Schulhäusern, bei denen gerade eine Sanierung ansteht, zusammengetragen. So fanden Küchenzeile, Zahnputztröge und Garderobenmöbel hier ihre Wiederverwendung.
Durch den Einbau von zwei neuen Fluchttüren beim Hauptraum ist eine Maximalbelegung von 200 Personen zugelassen. Es besteht also die Möglichkeit den Hauptraum abseits der Betreuung auch anderweitig zu bespielen.