Ferienhaus KV56

Projekt
Um- und Zubau Ferienhaus
St. Jakob im Walde, AT

Auftraggeber
Privat

Realisierung
geb. 1938, Umbau 2023/24
Planung, Ausführungsplanung, Bauleitung

Das Haus wurde über 40 Jahre hinweg gepachtet und gemeinschaftlich genutzt. Vor zwei Jahren erwarben es zwei Familien mit dem Ziel, es umfassend zu sanieren und neu zu beleben.

Der in die Jahre gekommene Anbau mit dem Badezimmer wurde abgerissen und durch einen zweigeschossigen Neubau ersetzt, der zwei zentrale Funktionen erfüllt: Zum einen beherbergt er sämtliche Nasszellen und technischen Installationen, was den Erhalt des Bestandsgebäudes erleichtert. Zum anderen fungiert er als Bindeglied zwischen den verschiedenen Außenbereichen, die sich hangabwärts rund um das Haus erstrecken.

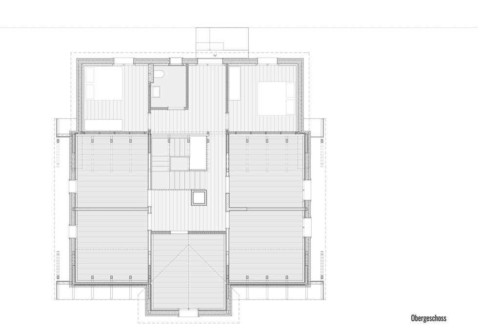
Im Erdgeschoss bildet ein großzügiger Gang, der sich zur Garderobe hin öffnet, die Verbindung zwischen dem Anbau und dem Altbau. Er schafft gleichzeitig eine direkte Verbindung vom Vorplatz mit Grillstelle zum Garten hinter dem Haus. Im Obergeschoss führt das Treppenhaus zu einem Weg, der direkt zur Scheune führt. Diese Durchlässigkeit und die enge Verzahnung des Hauses mit der umgebenden Landschaft waren den Bauherren ein besonderes Anliegen.

Von Anfang an war klar, dass die Struktur des Altbaus so weit wie möglich erhalten bleiben sollte. Dennoch waren einige bauliche Anpassungen erforderlich, um das Haus für die gemeinschaftliche Nutzung tauglich zu machen. Beispielsweise wurden zwei ehemalige Stuben zu einem großen Raum zusammengelegt, der nun als zentraler Bereich für gemeinsames Kochen und Essen dient.

Die alte Bestandstreppe, die viel zu steil war, wurde durch ein neues Treppenhaus ersetzt. Dieses erstreckt sich bis unter das Dach und verleiht dem zuvor eher geschlossenen Haus eine offene und einladende Atmosphäre. Diesen Charakter unterstreicht der „Spieleturm“, der sich zentral im Treppenhaus befindet und Platz für die umfangreiche Spielesammlung bietet.

Ein besonderer gestalterischer Akzent wurde im Korridor gesetzt: Hier kamen gebürstete Fassadenbretter aus dem ursprünglichen Bestand zum Einsatz, die wieder montiert wurden. Aus den übrigen Brettern fertigte die Bauherrschaft selbst Möbelstücke wie Garderoben, Betten und Regale an – ein kreativer Beitrag zur Verbindung von Tradition und Moderne.